CORNAREDO - QUADRILOCALE MQ 120 + AMPIO BOX

Cornaredo (Milano)

Rif: Cornaredo
Condividi Linkedin Whatsapp Stampa
€ 290.000
Appartamento
128 Mq
4 Vani
Classe energetica F
3 Camere
2 Bagni
Garage
Ascensore
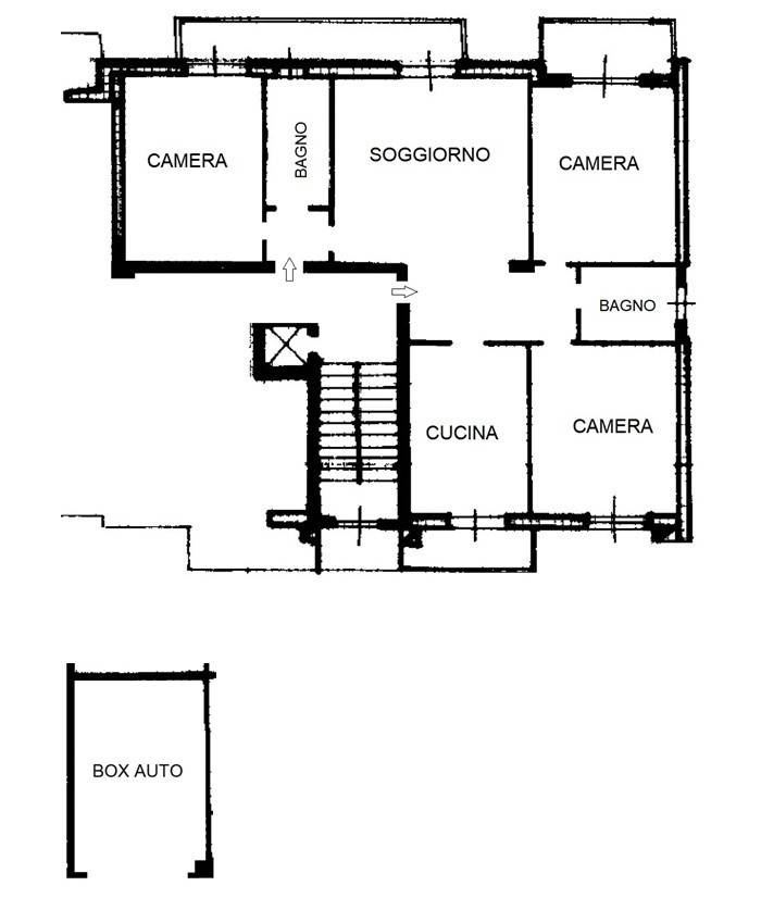
Via Martiri di Belfiore, già libero, in posizione tranquillissima a pochi passi dal centro di Cornaredo, ultimo piano (5°) con ascensore, luminosissimo e ben diviso, bel quadrilocale con due ingressi, ampio soggiorno, cucina abitabile, 3 grandi camere, doppi servizi, 3 balconi, cantina e ampio BOX AUTO. Eu. 290.000. StudioCiesse 0248713534

Dettaglio immobile

Contratto Vendita
Rif Cornaredo
Prezzo € 290.000
Provincia Milano
Comune Cornaredo
Indirizzo Via Martiri di Belfiore 8
Superficie 128 mq
Vani 4
Camere 3
Bagni 2
Classe energetica F (DL 90/2013)
EPgl,nren 209,62 kwh/m2 anno
Piano 5 / 5
Riscaldamento centralizzato
Condizioni abitabile
Spese condominiali € 350
Anno di costruzione 1968
Ascensore si
Garage 15 mq
Cantina si
Cucina abitabile
Balcone si

Consistenze

Descrizione Superficie Sup. comm.
Principali
Immobile - 5° piano 120 Mq 120 Mqc
Box/Garage - piano terra 15 Mq 8 Mqc
Totale 128 Mqc

Planimetrie

Richiedi maggiori informazioni

Autorizzazione al trattamento dei dati personali+
Dichiaro di aver letto l'informativa sulla privacy ed accetto le condizioni d'utilizzo del servizio.
Riempi il campo con il codice riportato nell'immagine*
Codice Captcha
FIMAA
Chiamaci Contattaci